首页 > 美国地产开发 > 经典回顾

达拉斯彩虹桥

达拉斯彩虹桥社区总投入为1700万美金,总户数100户,总建筑面积17万平方英尺。

每户造价为16.5万美金,比周边房屋价格低约20%。目前入住率为100%。

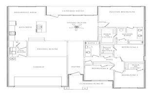
  • 建筑面积:190-250平方米
  • 项目售价:100.00
  • Alternate Text

    卧室

    3-4

  • Alternate Text

    卫浴

    2.5-3.5

  • Alternate Text

    车库

    3

  • Alternate Text

    楼层

    2

项目配套: